Pendry Natirar Event Space Ballroom

Business Meets Pleasure.
Meetings in Somerset County.

Where business is a pleasure. Pendry Natirar plays host to corporate gatherings of various sizes with unparalleled attention to service, a variety of farm-influenced event and activity offerings such as cooking classes with a chef, farm tours and more, and an inspired destination in Somerset County’s vast countryside only an hour or so from Manhattan.

Contact & Information
  • 400 Natirar Drive
    Peapack-Gladstone, NJ 07977

At a Glance

Located on 500 rolling acres in New Jersey’s Somerset County

Less than an hour outside of New York City

Located about 34 miles from Newark Liberty International Airport (EWR)

68 guestrooms and suites

Three distinct food and beverage destinations Custom, world-class Spa Pendry featuring an exclusive menu of luxury treatments

More than 20,000 sq. ft. of special event space

Amenities include farm tours, golfing, afternoon tea, tennis and more

Pendry Natirar Event Space Maple
20,000
ruler icon Square Feet of Space
68
bed icon Total Accommodations
19
door icon Meeting Spaces
Meters
Feet
ROOM SQUARE FEET (APPROX) DIMENSIONS (FEET) CEILING (FEET) THEATER RECEPTION ROUNDS CLASSROOM U-SHAPE CONFERENCE HOLLOW SQUARE CRESCENT
THE MANSION FIRST LEVEL
GRAND BALLROOM 4,638 52 x 86 16-30 275 275 280 240 63 72 78 200
GALLERY 1,143 44 x 25 10 100 80 80 20 24 24 28 48
GRAND BALLROOM PREFUNCTION 1,168 20 x 56 10 100 250 80 20 24 24 28 48
GRAND BALLROOM TERRACE & GRAND LAWN 4,002 300 300
GRAND BALLROOM TERRACE 1,304 79 x 22 200
GRAND LAWN 1,650 49 x 26 240 200
BILLARDS ROOM 456 24 x 19 12
LIBRARY 500 23 x 21 12
ROOM SQUARE FEET (APPROX) DIMENSIONS (FEET) CEILING (FEET) THEATER RECEPTION ROUNDS CLASSROOM U-SHAPE CONFERENCE HOLLOW SQUARE CRESCENT
THE MANSION SECOND LEVEL
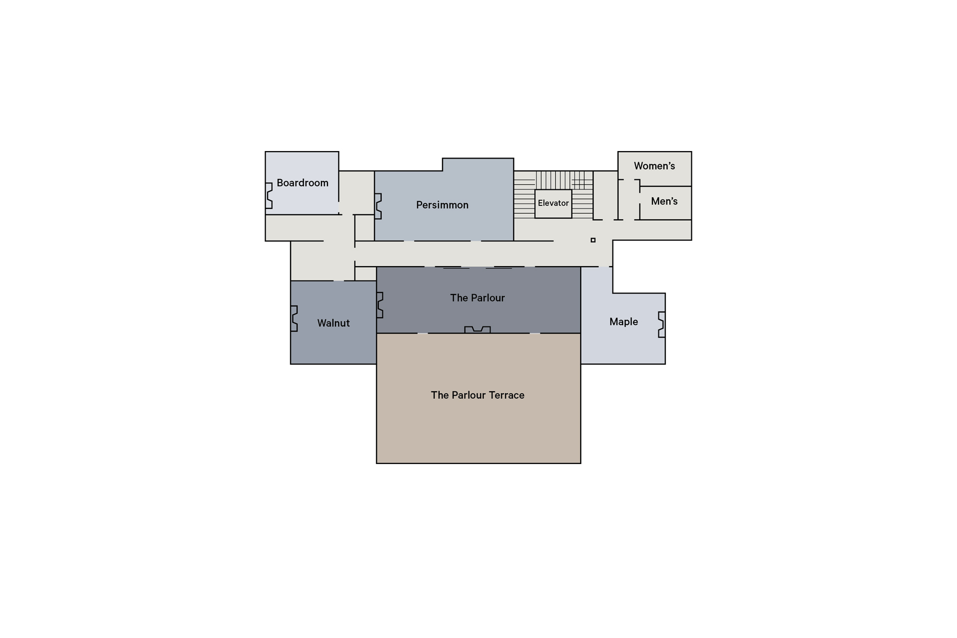
THE PARLOUR 952 55 x 17 12 50 60 50 26 28 28 30
THE PARLOUR TERRACE 2,180 52 x 36 80 50
PERSIMMON 712 37 x 21 12 56 50 50 30 26 28 28 25
MAPLE 485 21 x 19 12 28 40 30 12 16 14 18 15
WALNUT 491 22 x 22 12 32 40 40 18 18 14 18 20
BOARDROOM 316 19 x 16 12 12
ROOM SQUARE FEET (APPROX) DIMENSIONS (FEET) CEILING (FEET) THEATER RECEPTION ROUNDS CLASSROOM U-SHAPE CONFERENCE HOLLOW SQUARE CRESCENT
NINETY ACRES FIRST LEVEL
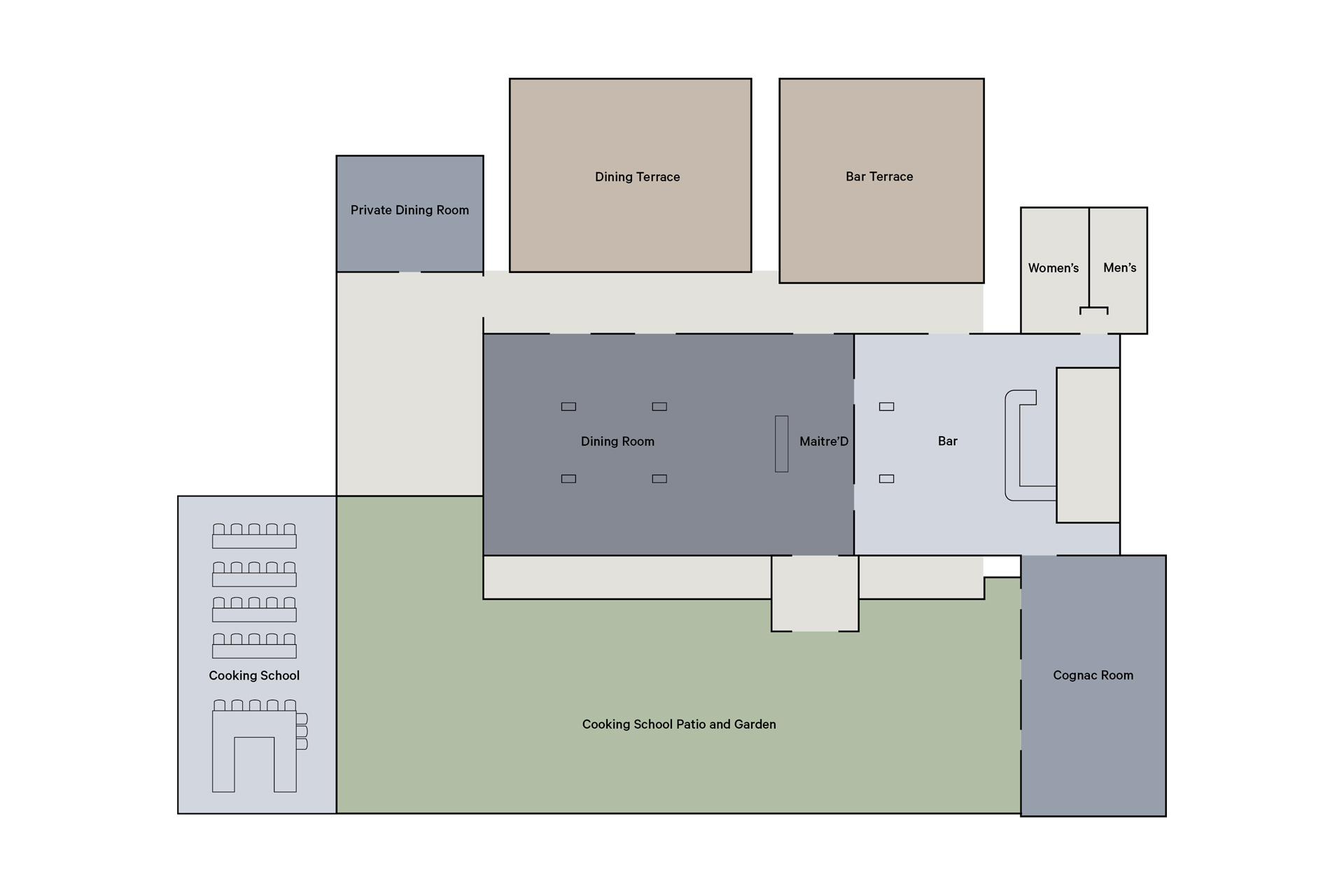
NINETY ACRES DINING & BAR 2,269 39 x 74 120 120
COGNAC ROOM 711 36 x 19 10 40 18
PRIVATE DINING ROOM 316 19 x 17 11 30 18
NINETY ACRES TERRACE 2,236 100
THE COOKING SCHOOL 1,188 47 x 25 12 40 40 40
ROOM SQUARE FEET (APPROX) DIMENSIONS (FEET) CEILING (FEET) THEATER RECEPTION ROUNDS CLASSROOM U-SHAPE CONFERENCE HOLLOW SQUARE CRESCENT
NINETY ACRES LOWER LEVEL
WINE CELLAR 605 30 x 18 40 40 40 28 25
WINE CELLAR TERRACE & LAWN 816 40 40

Discover Our Venues

Pendry Natirar Event Space Ballroom
Grand Ballroom
5,000 Square Feet, Up to 225 Guests
Pendry Natirar Event Space Ballroom
Gallery
1,143 Square Feet, Up to 75 Guests
The Parlour at Pendry Natirar set up for an event.
The Parlour
952 Square Feet, Up to 60 Guests
Persimmon room at Pendry Natirar set up for an event.
Persimmon
710 Square Feet, Up to 50 Guests
Maple room at Pendry Natirar set up for a meeting.
Maple
485 Square Feet, Up to 40 Guests
Walnut room at Pendry Natirar set up for an event.
Walnut
491 Square Feet, Up to 40 Guests
Pendry Natirar Event Space Boardroom
Boardroom
316 Square Feet, Up to 12 Guests
Ninety Acres Private
Ninety Acres
2,269 Square Feet, Up to 120 Guests
cooking school
The Cooking School
1,188 Square Feet, Up to 40 Guests
Pendry Natirar Ninety Acres
Ninety Acres
Cognac Room
710 Square Feet, Up to 40 Guests
Pendry Natirar Ninety Acres
Ninety Acres
Wine Cellar
605 Square Feet, Up to 40 Guests
Ninety Acres Private
Ninety Acres
Private Dining Room
315 Square Feet, Up to 18 Guests
The Billiards Room at Pendry Natirar with fireplace, lounge seating and a billiards table.
Billards Room
456 Square Feet
Pendry Natirar Library
Library
500 Square Feet
Chairs on the Great Lawn at Pendry Natirar
Grand Ballroom Terrace and Grand Lawn
4,002 Square Feet, Up to 300 Guests
Pendry Natirar Event Space Parlour Terrace
The Parlour Terrace
2,180 Square Feet, Up to 80 Guests
Pendry Natirar Ninety Acres
Ninety Acres Terrace
2,236 Square Feet, Up to 100 Guests
The garden of Ninety Acres Wine Cellar Terrace and Lawn at Pendry Natirar.
Wine Cellar Terrace & Lawn
816 Square Feet, Up to 40 Guests

Sign up to be the first to know about seasonal happenings, exclusive offers and more from Pendry Hotels & Resorts.

    Subscribe to news form

    Choose Location